Architekt
pierrezoelly013.jpg

EFH Horgen, Ines Specker Architektur, dipl. Arch ETH

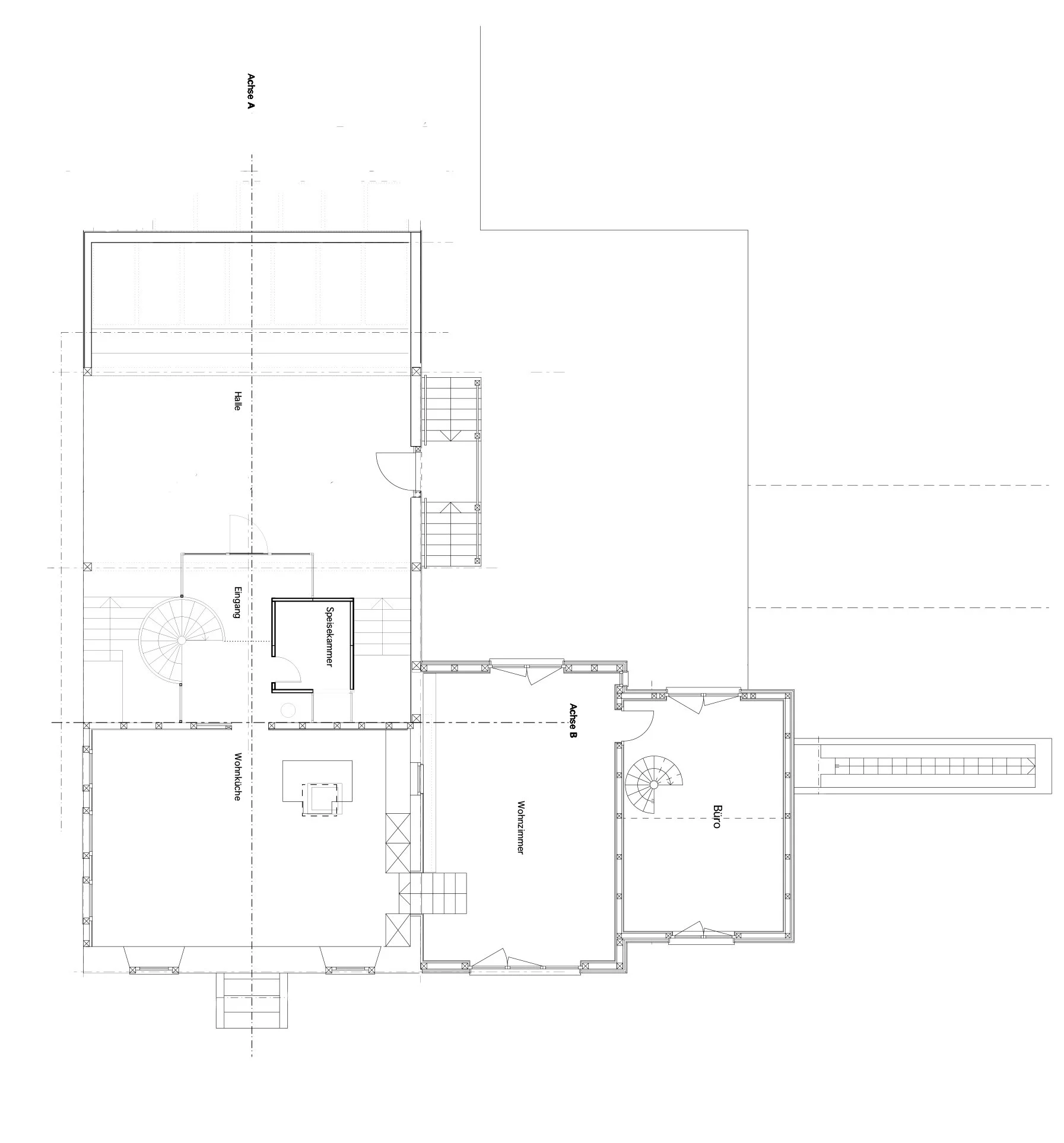
Erweiterung Umbau Planung Bauleitung Einfamilienhauses Horgen von Pierre Zoelly

Bäder und Reduits

 

Einfamilienhaus Horgen

Erweiterung Einfamilienhauses Horgen von Pierre Zoelly

Bäder und Reduits

Aussenansicht Turm Bäder

Aussenansicht Turm Bäder