Architekt
IMG_7960-klein.jpg

Mehrfamilienhaus Stäfa, Ines Specker Architektur & Fabiano Marchetta

Umbau Mehrfamilienhaus Denkmalschutz Stäfa Projektleitung Bauleitung Mitarbeit Fabiano Marchetta

 

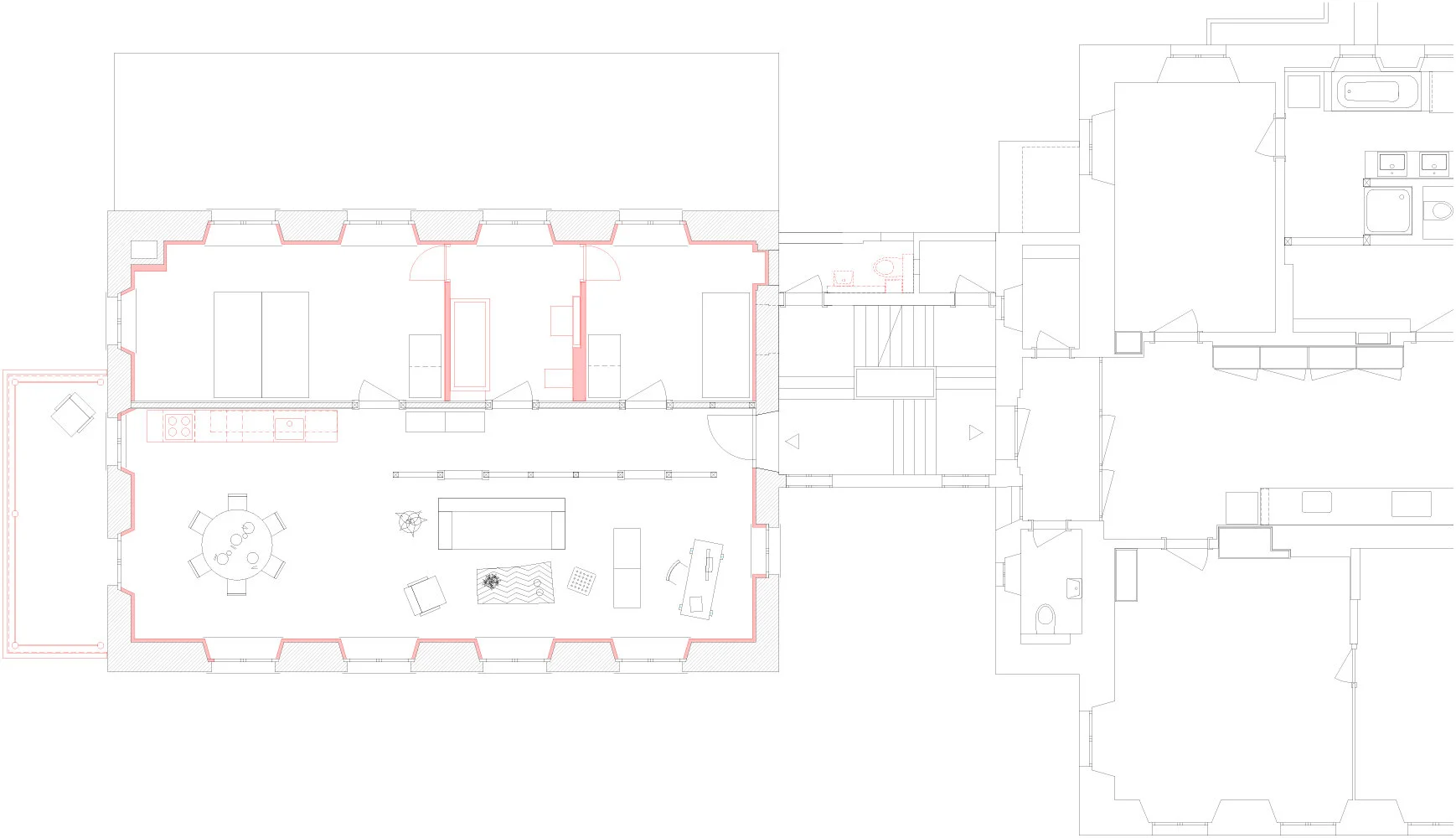
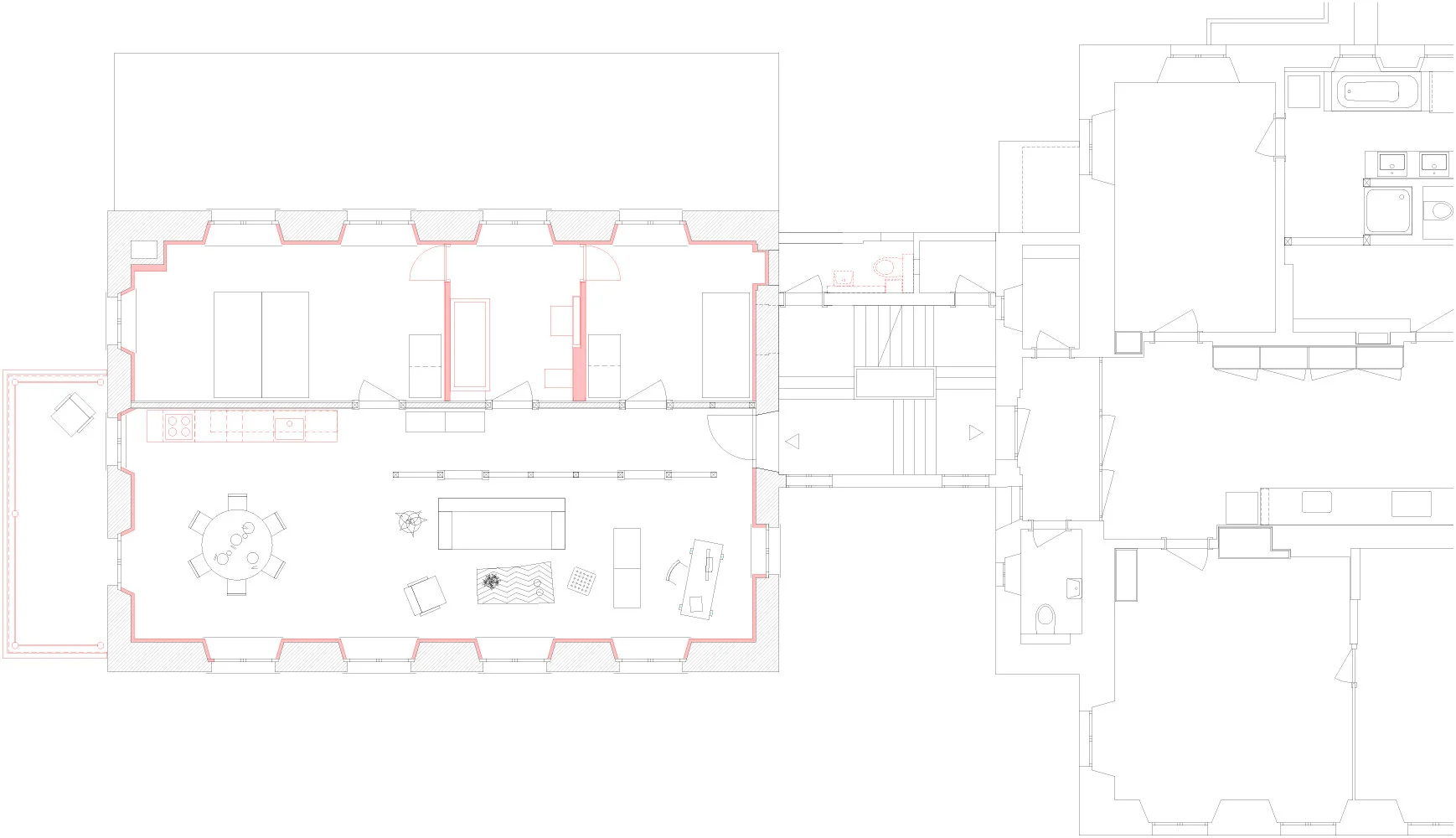
Mehrfamilienhaus Stäfa

Totalumbau eines denkmalgeschützten Mehrfamilienhauses

mit Dachausbau und Balkon

in Zusammenarbeit mit Fabiano Marchetta

 

Zustand 1. Obergeschoss nach Abbrucharbeiten

Zustand 1. Obergeschoss nach Abbrucharbeiten